华体会体育欢迎您!网站首页|客户留言|足球篮球官方直播平台
0510-86106969
产品展示products KFJ/BFJ/SFJ华体会体育 PW系列衬胶污水泵 KFZ系列衬胶自吸泵 KFM系列衬胶砂磨泵 KFP系列聚四氟乙烯泵 PNFJ系列渣浆泵 S型系列玻璃钢泵 FSB型氟塑料合金离心泵 足球篮球官方直播平台contacts 电话:86 0510-86106969
         86 0510-86108318
传真:86 0510 86108328
         86 0510-86101528
地址:江阴市经济开发区(西区·石庄)
         华特西路28号
当前位置:首页 > 公司产品公司产品

PW-BFJ型系列耐磨耐腐耐温衬胶污水泵 概述:

PW-BFJ型系列耐磨耐腐耐温衬胶污水泵,其过流部分采用进口橡胶高温硫化模压成型,具有良好的耐磨耐腐耐温性能。整体结构简单、运转平稳、噪声低,泵密封采用机械密封及新型K型骨架油密封装置,解决了泵的泄漏问题,是现代环保领域较理想的节能泵。实践证明:可取代其它的普通型防腐型污水泵,其运行成本低、使用寿命长,是当今污水泵中的佼佼者。



用途:

PW-BFJ型系列耐磨耐腐耐温衬胶污水泵,广泛用于化工、冶金、漂染、化肥、电解、日化、有色金属、冶炼等企业的污水处理和城市环保,是新一代污水泵中的精品。



型号说明:



性能参数:



性能曲线图:



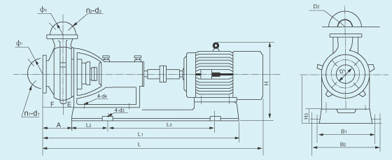
外形尺寸图:


外型及安装尺寸表:



足球篮球官方直播平台 销售热线:0510-86106969 电话:0510-86106969 86108318
传真:0510-86108328 86101528
地址:江阴市经济开发区(西区·石庄)华特西路28号
Copyright © 2020 华体会体育版权所有 苏ICP备19034554号